CHARMANTE VILLA NEUVE – SARROLA-CARCOPINO

Sarrola-Carcopino, Corse, 20167

Key Details

Status
À vendre
Type
Maison
Terrain
750
Chambres
3

Overview

Mandat n°T262

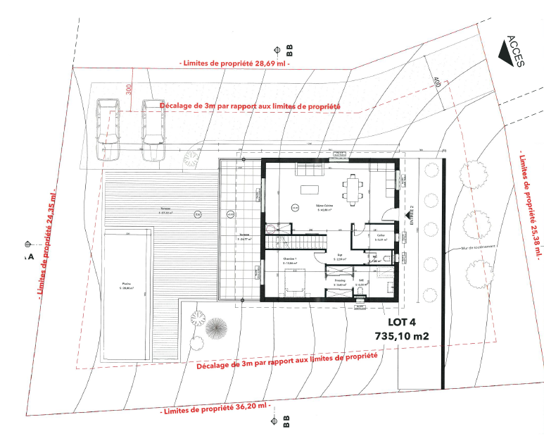
L’Agence Mariani a le plaisir de vous présenter cette charmante villa neuve de 131 m2 en VEFA, édifiée sur 2 niveaux, sur un terrain arboré et entièrement clôturé de 735 m2. Bénéficiant d’une agréable exposition Sud-Ouest, elle offre un cadre de vie lumineux et paisible.

Le rez-de-chaussée se compose d’un vaste séjour de 42 m2 avec cuisine américaine ouverts sur une terrasse de 26 m2, d’un cellier, d’un W.C visiteur, d’une suite parentale avec salle d’eau/ W.C ouverts sur terrasse également.

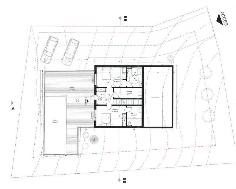
Au rez-de-jardin, vous retrouverez une buanderie et deux grandes chambres, chacune disposant de sa propre salle d’eau avec W.C. L’ensemble s’ouvre sur une belle terrasse de 60 m2 avec piscine en béton (9 x 3 m), idéale pour profiter des beaux jours.

Les prestations sont de bonne qualité: menuiseries double-vitrage, volets roulants électriques, climatisation réversible, sols carrelés … . La maison est construite sur vide sanitaire.

Idéalement située dans un quartier calme et résidentiel mais proche de toutes les commodités notamment de la zone d’activité de Baleone.

Contactez-nous sans plus tarder!

Les informations sur les risques auxquels ce bien est exposé sont disponibles sur le site Géorisques : www.georisques.gouv.fr .

Amenities

Climatisation
Piscine
Cuisine
Etage
Exposition

Explore the Area

Transportation
Restaurants
Shopping
Cafes & Bars
Arts & Entertainment
Fitness

Similar Properties